Thật ra, đây chỉ là một trong những hệ nhôm nằm trong các thanh profile nhôm Xingfa nhập khẩu chính hãng 100% tem đỏ Quảng Đông – nơi cho ra đời các dòng nhôm Xingfa nổi tiếng. Hệ nhôm này có độ dày từ 1.4 – 2.0 mm cùng các thiết kế bên trong khoang trống có nhiều đường gân sole nhau với tác dụng chịu lực giúp toàn bộ khối cửa cứng cáp, vững chắc và chịu sức ép, va đập cực lớn mà vẫn giữ nguyên hình khối kích thước như lúc ban đầu. Đảm bảo được tính thẩm mỹ rất đẹp cho thanh profile nhôm xingfa .
BẢN VẼ CHI TIẾT KỸ THUẬT NHÔM XINGFA HỆ 55

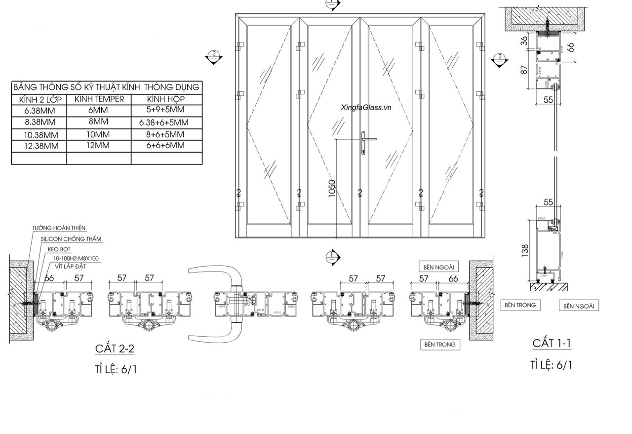
BẢN VẼ KỸ THUẬT CỬA ĐI MỞ QUAY 4 CÁNH NHÔM XINGFA HỆ 55

BẢN VẼ KỸ THUẬT CỬA ĐI MỞ QUAY 1 CÁNH NHÔM XINGFA HỆ 55

BẢN VẼ KỸ THUẬT CỬA SỔ MỞ QUAY NHÔM XINGFA HỆ 55

BẢN VẼ KỸ THUẬT CỬA SỔ MỞ HẤT NHÔM XINGFA HỆ 55
Ưu điểm của nhôm Xingfa hệ 55
- Bề mặt sơn tĩnh điện ngoài trời theo tiêu chuẩn quốc tế à Cửa có độ bền, màu sắc vượt thời gian mà không sợ bị bong tróc, kể cả khi thời tiết khắc nghiệt, nóng, lạnh, mưa, nắng thất thường.
- Tương thích với nhiều phụ kiện, trong đó có kính an toàn phôi Việt – Nhật Hải Long, ốc vít inox, gioăng kép kín khít EDPM, keo Dowcorning,…
- Cách âm, cách nhiệt tốt. Đóng mở nhẹ nhàng, linh hoạt.
- Đa dạng chủng loại, kích thước.
- Ít phải sửa chữa, bảo hành, bảo dưỡng trong quá trình sử dụng.
Thông số kỹ thuật nhôm hệ 55
- Độ dày: 1.4 – 2.0 mm (tùy thuộc vào từng mẫu thiết kế cửa).
- Màu sắc: Trắng sứ, đen tuyền, ghi sẫm, nâu sần, vân gỗ,…
- Kích thước: Phụ thuộc vào kích thước thực tế của từng bộ cửa.
- Kính: Kính phôi Việt – Nhật của Hải Long với độ dày từ 6.38 – 23.76mm.
- Phụ kiện: Hệ phụ kiện kim khí Kinlong cao cấp nhập khẩu.
- Keo: Keo Dowcorning Eurowindow chịu nước 100%.
- Keo ép góc: PU88 nhập khẩu nguyên liệu Mỹ.
- Gioăng kép: EDPM chất lượng cao.
- Bảo hành: Chính hãng 5 năm tiêu chuẩn Xingfa GuangDong.

So sánh nhôm Xingfa hệ 55 và các hệ khác
| Hệ 55 | Hệ 93 | Hệ 65 | Hệ 140 | |
| Đặc điểm | Độ dày từ 1.4 – 2.0 mm | Độ dày 2.0 mm. | Độ dày từ 2.5 – 3.5 mm. | Độ dày từ 3.0 – 3.5 mm. |
| Ứng dụng | Dùng cho cửa sổ, cửa sổ mở hất, cửa đi mở quay, cửa sổ lùa, cửa đi lùa. | Chỉ dành cho cửa sổ lùa và cửa đi lùa
|
Dùng cho mặt dựng vách kính lớn, bao gồm vách mặt dựng giấu đố và vách mặt dựng lộ đố. | Dùng cho hệ cửa trượt sử dụng 3 đường ray. |
Cách nhận biết nhôm Xingfa hệ 55 chính hãng Quảng Đông
Dựa vào tem dán trên sản phẩm
Khi mua nhôm hệ 55, bạn nên xem xét kỹ tem dán trên sản phẩm. Nếu thấy màu sắc tươi, chữ được in sắc nét từng chi tiết logo, chất liệu tốt và mã vạch chính xác, sắc nét thì đó chính là sản phẩm chính hãng. Ngược lại, không nên mua các loại nhôm có tem dán nhợt nhạt, chữ in bị nhòe mực, không sắc nét bởi đó có thể là hàng giả, hàng nhái kém chất lượng.


Dựa vào lõi bên trong thanh nhôm
Bạn cũng có thể xác định nhôm chính hãng hay không chính hãng bằng cách kiểm tra lõi bên trong thanh nhôm. Với sản phẩm chính hãng Quảng Đông, nhôm Xingfa được mạ lớp Crom trước khi sơn nhằm tránh bị oxy hóa nên bạn sẽ thấy có màu ánh kim. Trong khi đó, nhôm kém chất lượng không có lớp Crom nên màu tốt hơn và dễ bị oxy hóa làm hao mòn thanh nhôm.
Dựa vào độ dày
Bạn có thể kiểm tra độ dày của thanh nhôm Xingfa nhập khẩu chính hãng đã sơn là:
- Cửa đi hệ 55: 2.02 – 2.05 mm.
- Cửa sổ: 1.41 – 1.42 mm.
Trong khi đó, thanh nhôm Xingfa giả có độ dày là:
- Cửa đi: 1.9 mm.
- Cửa sổ: 1.3 mm.
Dựa vào màu sắc trên thanh nhôm
Thanh nhôm thật được sơn bởi công nghệ tốt nhất nên bề mặt có độ sáng bóng (nhôm trắng) hoặc độ nhám đều đặn (nhôm xám nghi). Còn với nhôm giả, màu sơn không phủ hết toàn bộ thanh nhôm và không được đều nhau, có nét sần sùi của hạt sơn.
Hãy liên hệ ngay với chúng tôi: 0935060705
——————————————
Nhôm Kính – Cơ Khí – Nội Thất Đại Tín Phát
Xưởng Nội Thất : 104 Phạm Văn Đồng, Vỹ Dạ, Thừa Thiên Huế
Tư vấn 24/24: 0935060705 – 0931941079
Email: daitinphat2018@gmail.com

